ΧΡΟΝΟΛΟΓΙΑ:
2023ΤΟΠΟΘΕΣΙΑ:
ΑλεξανδρούποληΜέγιστη αξιοποίηση του φυσικού φωτός
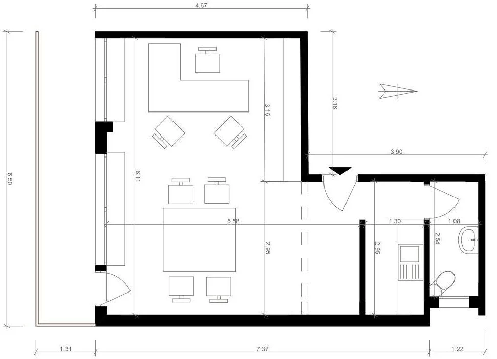
Το γραφείο βρίσκεται σε οικοδομή χτισμένη το 1969 στο κέντρο της Αλεξανδρούπολης. Στόχος της μελέτης ήταν να “ανοίξει” ο χώρος, να μεγιστοποιηθεί ο φυσικός φωτισμός και να ανανεωθεί ο χαρακτήρας του σε σύγχρονο και μοντέρνο ύφος.
Οι παλιές εσωτερικές διαχωριστικές τοιχοποιίες καθαιρέθηκαν ολοκληρωτικά, χρησιμοποιήθηκε ξηρά δόμηση μονάχα για να διαχωριστεί ο χώρος της κουζίνας, στο δάπεδο τοποθετήθηκε laminate ενώ το μπάνιο επενδύθηκε σε τοίχους και πάτωμα με πατητή τσιμεντοκονία.
Ανοιχτοί χώροι,
σύγχρονο και μοντέρνο ύφος
Έγινε αντικατάσταση όλων των παλιών κουφωμάτων με νέα πλαστικά διπλού υαλοπίνακα , οι εσωτερικοί τοίχοι βάφτηκαν λευκοί σπατουλαριστοί και τοποθετήθηκε γυάλινο στηθαίο με οδηγό αλουμινίου στον εξώστη του γραφείου.
Η επίπλωση και τα είδη υγιεινής επιλέχθηκαν ώστε να συνάδουν με το ύφος του χώρου ενώ γυψοσανίδες με κρυφό φωτισμό και σποτάκια στην οροφή ολοκληρώνουν τη σύνθεση.
Ανοιχτοί χώροι,
σύγχρονο και μοντέρνο ύφος
Έγινε αντικατάσταση όλων των παλιών κουφωμάτων με νέα πλαστικά διπλού υαλοπίνακα , οι εσωτερικοί τοίχοι βάφτηκαν λευκοί σπατουλαριστοί και τοποθετήθηκε γυάλινο στηθαίο με οδηγό αλουμινίου στον εξώστη του γραφείου.
Η επίπλωση και τα είδη υγιεινής επιλέχθηκαν ώστε να συνάδουν με το ύφος του χώρου ενώ γυψοσανίδες με κρυφό φωτισμό και σποτάκια στην οροφή ολοκληρώνουν τη σύνθεση.

